Property Details
Basic Information
- MLS Number: 186614
- Latitude: 39.18667
- Longitude: -106.819775
Building
- Property Style: Contemporary
- Year Built: 2005
- Zoning: Fractional
Location
- Town: Aspen
- State: CO
- Zip: 81611
Finance
- Fees: $8,139
Interior Features
Bedrooms
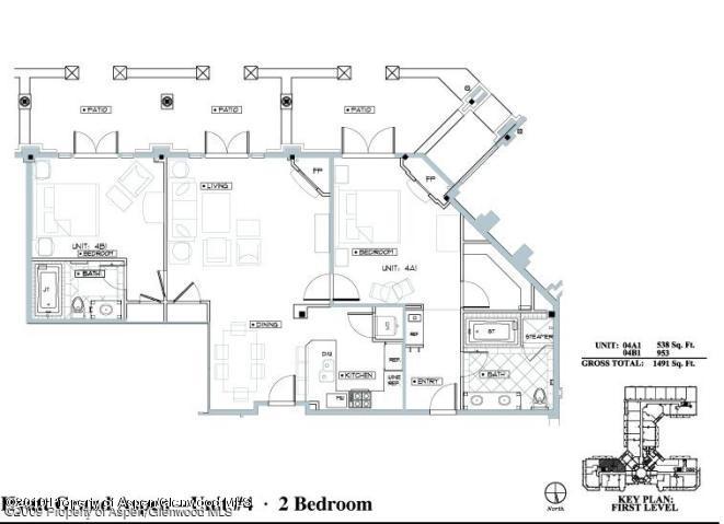
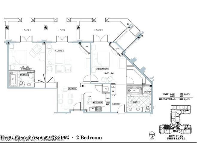
- Bedrooms: 2
Bathrooms
- Bathrooms: 2
- Full Baths: 2
Basement
- Basement: Finished
Other
- Fireplace: Yes
- Fireplace Features : Gas
Utilities and Appliances
Utilities and Appliances
- Heat System: Natural Gas, Forced Air
Community
Area
- Subdivision: G.a. Resort Condos Aka The Aspen Mountain Residences
































Based on information submitted to AGMLS as of November 6, 2025 6:44 PM EST . All data is deemed reliable but is not guaranteed accurate by the MLS. All information should be independently reviewed and verified for accuracy. IDX information is provided exclusively for consumers’ personal, noncommercial use and may not be used for any purpose other than to identify prospective properties consumers may be interested in purchasing.
Connect